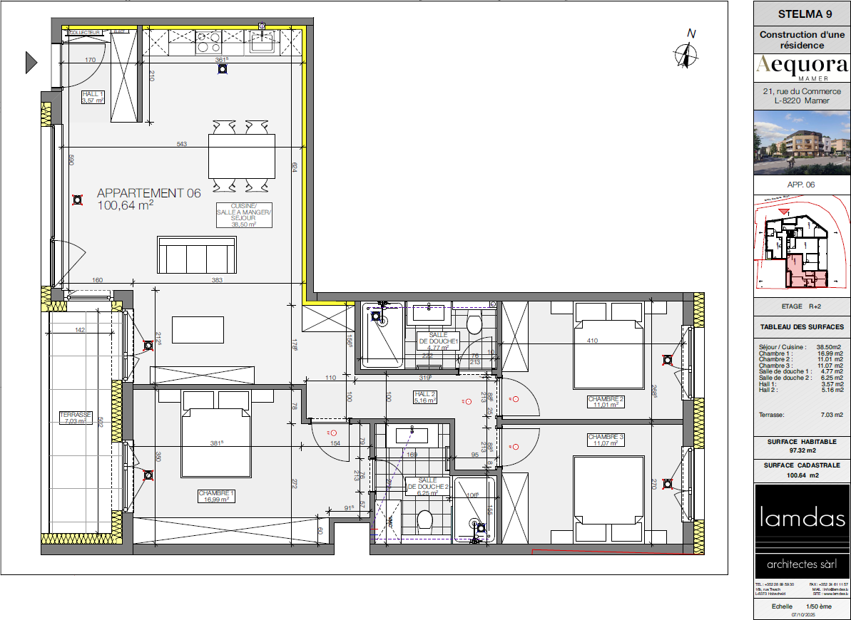
Appartement 3 chambres
Lot Nº 3ch no. 6Nous consulter
Surface
Étage
Orientation
97.32m2
2ème
Sud-Ouest - Est
Surface
97.32m2
Étage
2ème
Orientation
Sud-Ouest - Est
L’appartement se compose d’un hall d’entrée avec un grand débarras.
Nous accédons à une grande pièce de vie (38 m²) comprenant une cuisine ouverte sur le séjour, prolongée par une terrasse de plus de 7 m². Les vues sur le ruisseau et l’orientation sur ouest permettent un apport de lumière jusqu’au soir.
Un couloir dessert, 1 chambre parentale avec salle de bain et toilette, ainsi que 2 chambres et une salle de bain.
La terrasse est accessible par de grandes baies vitrées en angle depuis la pièce de vie et la chambre parentale.
Prestations du logement :
- Balcon
- Débarras
- Hall de nuit avec rangements
- WC séparé
